lokalizacja

biuro sprzedaży: ul. Malmeda 9 lok.1, 15-440 Białystok

Aktualne inwestycje

Wiatrakowa - Białystok

bg
bg

O inwestycji

Wiatrakowa - Białystok

Adres inwestycji

ul. Wiatrakowa 9, 15-827 Białystok

Opis Inwestycji

Zapraszamy do zapoznania się z ofertą wyjątkowej inwestycji mieszkaniowej przy ul. Wiatrakowej w Białymstoku. To nowoczesny, kameralny budynek zaprojektowany z myślą o komforcie i funkcjonalności. Niski blok składa się z zaledwie 19 mieszkań oraz 2 lokali użytkowych.

Nowoczesny Styl i Komfort

Budynek wyróżnia się współczesnym stylem architektonicznym - minimalistyczna forma i eleganckie wykończenia doskonale wkomponowują się w okolicę, a starannie dobrane materiały zapewniają trwałość i estetykę.

Wszystkie mieszkania o powierzchniach od 28,21m2 do 65,91m2 zostały zaprojektowane z dbałością o optymalne wykorzystanie przestrzeni, aby zapewnić maksymalny komfort użytkowania.

Budynek zostanie wyposażony w nowoczesną, inteligentną windę z systemem Schindler Ahead ElevateMe. Dzięki tej innowacyjnej technologii możesz korzystać z windy za pomocą smartfona - szybko, wygodnie i bezpiecznie.

Planowany termin oddania budynku do użytku - IV kwartał 2026r.

Plik do pobrania

prospekt-informacyjny-wiatrakowa-bialystok.pdf

Adres biura sprzedaży:
Północ Nieruchomości Białystok
ul. Malmeda 9 lok.1
tel: 85 732 06 00

Nr Piętro Metraż
(w m2)
Ilość pokoi Cena
(zł/m2)
Cena mieszkania
(zł brutto)
Status
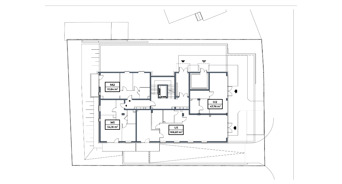
M1 Parter 54.16 3 11 200 606 592 Dostępne więcej >
M2 Parter 51.84 3 11 500 596 160 Dostępne więcej >
Nr Piętro Metraż
(w m2)
Cena
(zł/m2)
Cena lokalu
(zł brutto)
Status
1 Parter 109.24 12 300 1 343 652 Dostępne więcej >
2 Parter 47.88 12 300 588 924 Dostępne więcej >