lokalizacja

biuro sprzedaży: ul. Malmeda 9 lok.1, 15-440 Białystok

Aktualne inwestycje

Mokra - Białystok

bg
bg

Mokra - Białystok

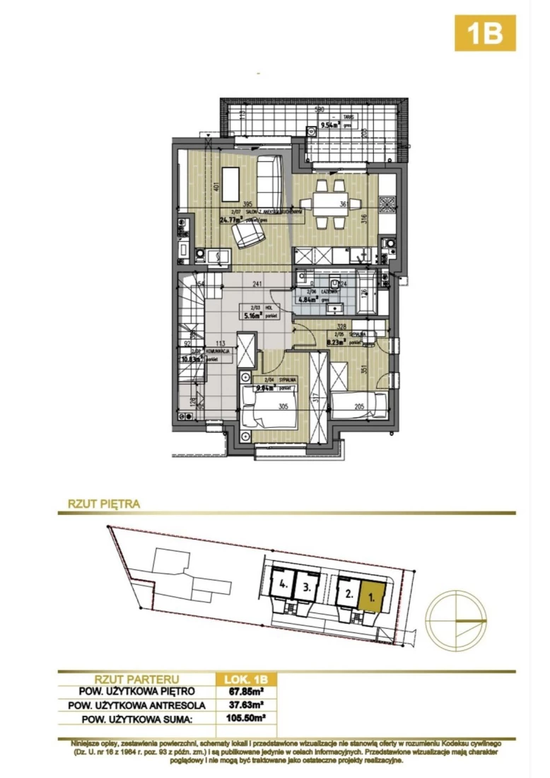
Mieszkanie 1B

Adres inwestycji
ul. Mokra,  Białystok

Cena za m2

8 300

zł brutto

Aktualna cena mieszkania

875 650

zł brutto

Piętro
1
Metraż
105.5 m2
Ilość pokoi
4
Status
Rezerwacja

Apartament 1B położony jest na I PIĘTRZE
Na powierzchni 105,50m2 tego dwupoziomowego mieszkania znajdują się:

POZIOM I

  • Pokój z aneksem: 24,77m2
  • Pokój: 9,04m2
  • Pokój: 8,23m2
  • Hol: 5,16m2
  • Łazienka: 4,48m2
  • Korytarz I: 5m2
  • Korytarz II: 10,83m2
  • Balkon: 11,39m2

POZIOM II

  • Antresola: 37,63m2

Adres biura sprzedaży:
Północ Nieruchomości Białystok
ul. Malmeda 9 lok 1
tel: 85 732 06 00

Wróć do zakładki inwestycji